Poresta BF KMK Duschsystem 110 x 90 x 5 cm
- verfliesbar und „rollstuhlbefahrbar“
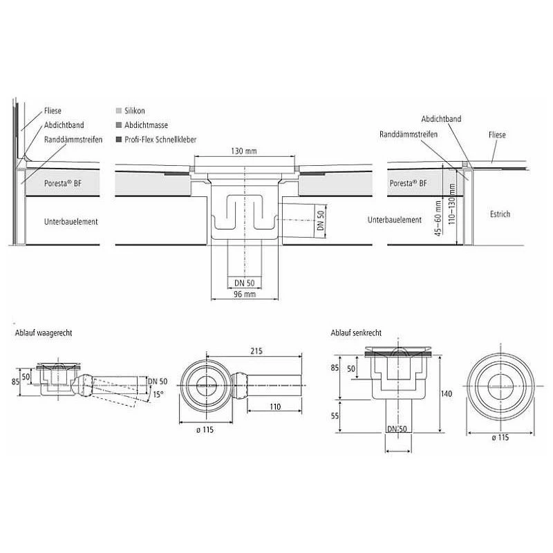
- Ablaufposition mittig zentriert
- wasserdichtes, beschichtetes Hartschaum-Duschsystem, mit
- integriertem Gefälle von ca. 2,5%, zentriert und eingedichteter Ablaufteller
- Montage wahlweise mit Ablauf waagerecht oder senkrecht möglich
- Ablauf nicht im Lieferumfang enthalten. Bitte separat bestellen!
- Sperrwasserhöhe 5 cm nach DIN EN 274
- Bei Verwendung von Fliesen der Mindestgröße 10 x 10 cm wird eine ausreichende Stabilität für die Nutzung von Rollstühlen erzielt, bei Verwendung von Fliesen der Mindestgröße 5 x 5 cm wird dies durch zusätzliche Einarbeitung eines Glasgittergewebes im Fliesenkleberbett erreicht.
- Mindestaufbauhöhe ca. 11 – 13 cm
- für Innenbereiche mit hohe Feuchtigkeitsbeanspruchung
- ZDB-Merkblatt A 02 – z.B. Bäder in privaten Wohnbereichen
- gute Wärmedämmung
Hinweis:
- Das Duschsystem Poresta BF kann seitens des Verarbeiters umlaufend um bis zu 5 cm gekürzt werden.
- Erforderliche Unterbauelemente zum Höhenausgleich unter Zubehör verfügbar!















Rezensionen
Es gibt noch keine Rezensionen.