Poresta BF KMK Bodenebenes-Duschelement 5-Eck 90 x 90 cm
- mit zentrierter Ablaufposition
- rollstuhlbefahrbar
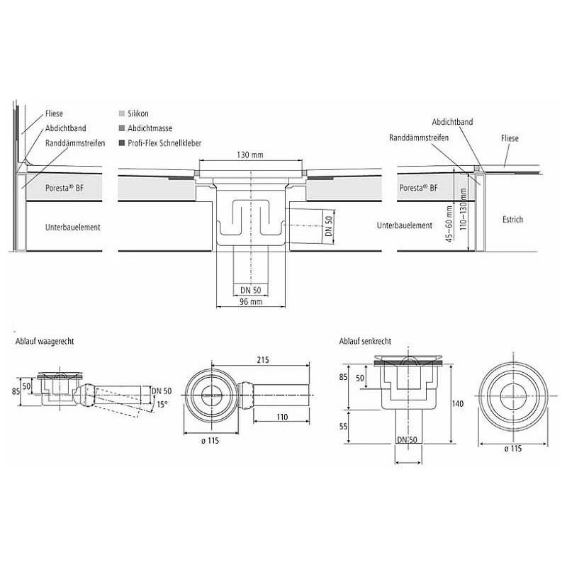
- Einbauhöhen: mit Ablauf waagerecht 11 cm; mit Ablauf senkrecht 4,5 cm
- Ablaufleistung: Ablauf waagerecht 42 l/min.; Ablauf senkrecht 60 l/min.
- Schenkelmaße: 90 x 90 cm x 35 x 60 cm
Hinweis:
Unter Berücksichtigung der Geometrie und Einbauhöhe kann das Duschsystem seitens des Verarbeiters umlaufend um bis zu 5 cm gekürzt werden. Bei Verwendung von Fliesen mit der Mindestgröße von 10 x 10 cm wird eine ausreichende Stabilität für die Nutzung mit Rollstühlen erzielt. Bei Verwendung von Fliesen mit der Mindestgröße von 5 x 5 cm wird unter zusätzlicher Einarbeitung eines Glasgittergewebes im Fliesenkleberbett eine ausreichende Stabilität für die Nutzung mit Rollstühlen erzielt.
















Rezensionen
Es gibt noch keine Rezensionen.